| 価格 | 3,380万円値下がり ![]() |
||||||
|---|---|---|---|---|---|---|---|
| 所在地 | 北海道札幌市西区琴似三条4丁目 3-16
この地域周辺の物件を見る |
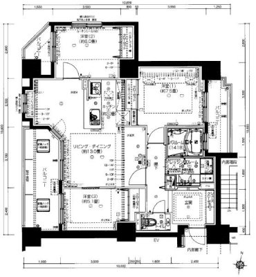
専有面積 | 80.62u | 間取り | 3LDK (LD13/K3/洋室5.1/洋室6/洋室7.5) | ||
| 交通 |
札幌市営東西線 琴似 徒歩5分
JR函館本線 琴似 徒歩10分 |
管理費等 | 12,100円 | 修繕積立金 | 24,200円 | 所在階/階数 | 10階/地上15階 地下1階建 | 築年月 | 2006年11月築 | バルコニー面積 | 18.27m² |
電話をかける(携帯・PHS可)
011-215-8703
「ホームページを見た」とお伝え下さい。
お問い合わせ番号をお伝えください
RHS-157101-2775
日々、価格変動などの変化がございます。より新鮮な情報をお求めのお客様はお店まで直接ご連絡ください。最新情報をお届けさせて頂きます。
011-215-8703営業時間:9:30〜18:30
定休日:水曜日、夏季休暇、年末年始
現地へのご案内やローンの相談といったお電話では解決できない内容を解決する事ができます。弊社のスタッフが丁寧にご対応させて頂きます。
アクセス札幌市東西線地下鉄「宮の沢駅」徒歩約20分
⇒店舗情報はこちら
会員様に新着物件を先行配信!人気の物件はすぐに売れてしまいます!会員登録して新着情報をお待ちください!
| 特徴 |
|
|---|---|
| セールスコメント | 共同施設等共益費:月額866円 サーパスネット利用料:月額2835円 - |
| 採光面 | 西 | 取引態様 | 専任媒介 |
|---|---|---|---|
| 現況 | 居住中 | 引渡し | 相談 |
| 総戸数 | 28戸 | 構造 | RC造 |
| テラス面積 | - | 専用庭面積 | - |
| 駐車場 | 空無 | 駐輪場 | - |
| 建物権利 | - | 土地権利 | 所有権 |
| 用途地域 | - - - | 管理態様 | 管理形態:委託(通勤) 管理組合:なし 管理会社:- |
| 情報更新日 | 2026年03月08日 | 次回更新日 | 2026年03月22日 |
| 小学校区 | 札幌市立琴似小学校 (北海道札幌市西区) この学区の他の物件を見る |
中学校区 | 琴似中学校 (北海道札幌市西区) この学区の他の物件を見る |
|---|
電話をかける(携帯・PHS可)
011-215-8703
「ホームページを見た」とお伝え下さい。
お問い合わせ番号をお伝えください
RHS-157101-2775
| 価格 | 万円 | ||
|---|---|---|---|
| 年利率 | % |
||
| ボーナス払い | 返済年数 | ||
| 頭金 | 直接入力する | 万円 | |

毎月のご返済額 |
ボーナス(×年2回) |
物件価格3,380万円 |
電話でお問い合わせ
アルガホーム株式会社
|
電話をかける 011-215-8703 ※「ホームページを見た」とお伝えください。 |
お問い合わせ番号をお伝えください RHS-157101-2775 |
|---|
※上記ローン返済額別物件特集(月々の支払)につきましてはあくまで目安となり、銀行審査で個人情報等により異なるケースもございます。

◆10階部分につき眺望良好!陽光が差し込む明るい室内、3面バルコニーあり◎
◆犬・猫2匹まで飼育可能。大切なペットと共に暮らせる